免費咨詢熱線
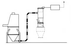
021-5430 1973不銹鋼真空輸送機, 真空輸送機工程咨詢上海貫匠機械設備有限公司生產的不銹鋼真空輸送機、氣動真空輸送機,電動真空輸送機,負壓輸送機、氣力輸送機、真空加料機、真空輸送設備、粉體加料機、自動上料機、真空上料機、粉體上料機、粉體輸送機、真空給料機、自動給料機等產品引進當今**先進的技術,整個輸送過程完全在密閉的狀態下完成,杜絕粉塵對工作環境、周邊環境和操作人員所帶來的污染和傷害,適用于制藥、食品、化工、電池等行業。
不銹鋼真空輸送機輸送物料的優勢:
物料可在全密閉的環境下完成移位,投料。

杜絕粉塵飛揚和泄露
對環境和操作者可起到雙重保護作用.
無任何傳動部件和易污染部件,可廣泛應用于潔凈環境.
工作過程無熱量產生,適合防爆要求.
清潔拆卸,快捷方便.
滬ICP備17015785號-4 | 粉體投料輸送拆包分裝設備熱門搜索詞 | 網站地圖 | 未經同意不得擅自模仿、復制、及鏡像本網站 法律顧問:上海創遠律師事務所