免費咨詢熱線
021-5430 1973
白糖可以真空輸送嗎?
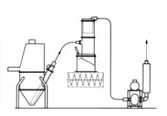
答案是肯定的。白糖吸料機又稱吸糖機、真空上料機,真空加糖機、真空輸送機。是一種借助于真空吸力來傳送白糖顆粒和粉末狀物料的無塵密閉管道輸送設備,利用真空與環境空間的氣壓差,形成管道內氣體流動,帶動粉狀物料運動,從而完成白糖、顆粒、粉體的輸送。
貫匠白糖吸料機廣泛適用于酒廠、飲料廠、釀造廠、制藥廠等灌裝作業生產線,自動化高,生產速度快。吸料機采用真空負壓輸送原理,通過管路密閉輸送即無塵無污染,又可節省大量人力搬運,快速又穩定,是蒸煮設備必備配套設施。貫匠公司以信譽和真誠的服務為經營方針,為廣大客戶提供優質密閉真空輸送產品。

衛生管配件、閥門廣泛適用于食品、糖果、釀酒、啤酒、飲料、乳制品、精細化工、日用品、化妝品、中藥、制藥及生物工程等眾多行業。不僅可以滿足上述行業衛生質量的要求,還可以替代進口。
產品特點 真空源式電控氣動型真空輸送機使用氣動真空泵產生真空源,PLC控制器控制。優點是可達到的輸送能力大,可適用于較大輸送要求的場合。氣動控制器可以勝任多工藝點生產車間復雜的工藝生產要求,做到**限度的自動化生產。
真空加料機采用文丘里泵整個系統處于一定的真空狀態,粉粒料隨同外界空氣被吸入料嘴,形成料氣流,經過吸料管到達料斗,在料斗中進行氣、料分離。分離后的物料進入受料設備。送料——放料是通過氣動三通閥不斷地開、閉來完成的,而氣動三通閥的開閉是由控制中心來控制的。
真空加料機中裝有壓縮空氣反吹裝置,每次放料時,壓縮空氣脈沖反吹過濾器,把吸附于過濾器表面的粉末打落下來,以保證吸料能正常運行。
該機是國內先進、理想、完善的粉狀料、粒狀料、粉粒料混合料的真空輸送設備。真空白糖加料機能自動地將各種物料輸送到包裝機、注塑機、粉碎機等設備的料斗中,也能直接把混合的物料輸送到混合機(如V型混合機、二維混合機、三維混合機等)中,減輕了工人勞動強度,解決了加料時粉塵外溢等問題,是制藥廠、食品廠通過GMP認證、促進清潔、文明生產的首選設備。
滬ICP備17015785號-4 | 粉體投料輸送拆包分裝設備熱門搜索詞 | 網站地圖 | 未經同意不得擅自模仿、復制、及鏡像本網站 法律顧問:上海創遠律師事務所